ご予約・お問い合わせはこちら
お電話での
お問い合わせはコチラ
平日9:00-18:00 / 水曜定休
LINEでの
お問い合わせはコチラ
《予約制》ご来店お待ちしています

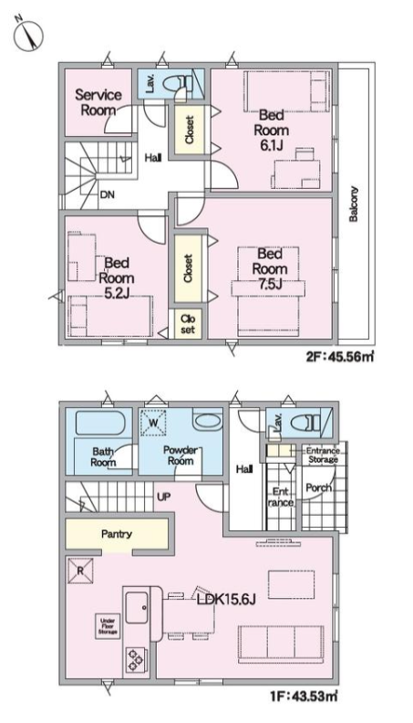
大型パントリーを採用した南向きのリビング。洗面ルームも広々しており収納も豊富です!各部屋収納を兼ね備えコンパクトな間取りに加え、玄関から各居室に向かうにはリビングの階段を通っていくので、帰宅が遅くなったお子様とも必ず会話ができる設計になっており、通風・採光とも考慮された間取りです。


| 所在 | 神奈川県南足柄市福泉字善能 | |
|---|---|---|
| 交通 | 大雄山線「大雄山」駅徒歩22分 | |
| 建築階数 | 2階建 | |
| 土地 | 権利形態 | 所有権 |
| 面積 | 敷地面積:139,52㎡ | |
| 建物 | 専有面積 | 89,09㎡ |
| その他面積 | ||
| 間取り | 3LDK 洋5.2-6.1-7.5、LDK 15.6 | |
| 備考 | 耐震等級3、オートバス、追焚機能、浴室乾燥機、トイレ2ヶ所、全居室クローゼット、プロパ ンガス、上水道下水道、建築確認番号:第 K B H S G M 2 5 1 0 – 2 1 9 8 号、引渡し予定日:2025年10月中旬予定 | |
| 建築 | 2025年10月中旬予定 | |
| 構造 | 木造2階建 | |
| 学区 | ||
| 管理 | 管理会社 | |
| 管理形態・方式 | ||
| 取引態様 | 仲介 | |
| 引渡 | 現況 | 建築中 |
| 引渡時期 | 2025年10月中旬予定 | |
| 備考 | – | |
| 価格 | 2,680万円 |
| 管理費 | – |
| 修繕積立金 | – |
| 諸費用 | – |
| 会社概要 | 免許番号:神奈川県知事(1)第32937号 取引態様:<仲介> 営業時間:平日9:00-18:00 / 水曜定休 合同会社 池田商事 〒250-0100 神奈川県南足柄市関本529番地2山崎ビル1F |
平日9:00-18:00 / 水曜定休
《予約制》ご来店お待ちしています
平日9:00-18:00 / 水曜定休
《予約制》ご来店お待ちしています